13536 Sauger CourtConroe, TX 77384




Mortgage Calculator
Monthly Payment (Est.)
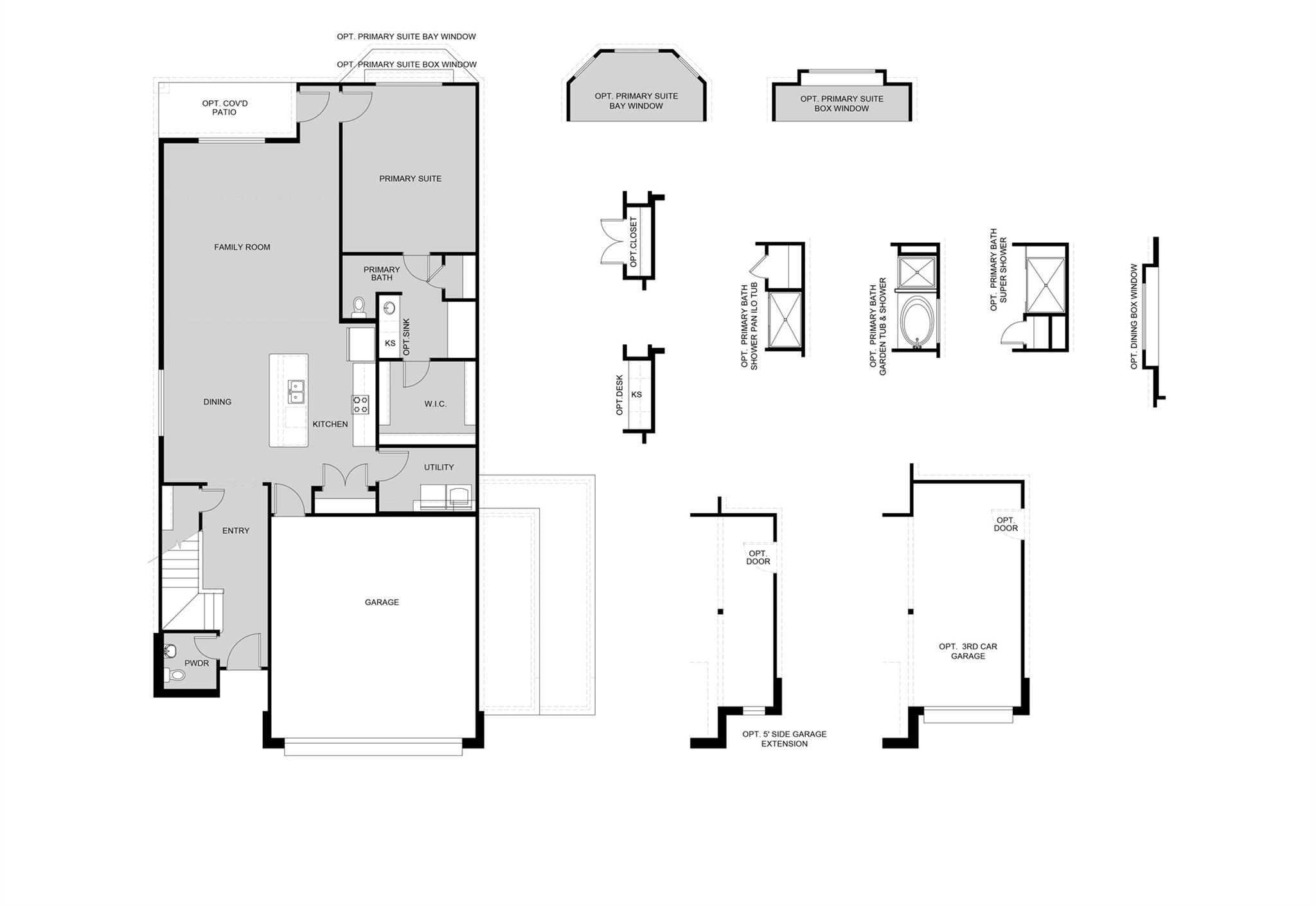
$1,457Love where you live in River's Edge in Conroe, TX! Home is zoned to the excellent Woodlands schools - Eissler Elementary School, Mitchell Intermediate School, McCullough JH School, and Woodlands High School. Now featuring Legend’s NEW Smart Home package and Signature Design Collection! The Wisteria floor plan is a stunning two-story home, with soaring ceilings in the foyer, and features 4 bedrooms, 2.5 baths, a game room, and 2-car garage. This home has it all, including privacy blinds, wrought iron spindles at the staircase, and vinyl plank flooring! The gourmet kitchen is sure to please with 42" cabinetry, silestone countertops, stainless-steel appliances, and a box window at the dining area. Retreat to the first-floor Owner's Suite featuring a beautiful bay window, double sinks with silestone countertops, a separate tub and shower, and walk-in closet. Enjoy the great outdoors with a covered patio! Don't miss your opportunity to call River's Edge home, schedule a visit today!
| 2 days ago | Listing updated with changes from the MLS® | |
| 3 days ago | Listing first seen on site |
IDX information is provided exclusively for consumers’ personal, non-commercial use. It may not be used for any purpose other than to identify prospective properties consumers may be interested in purchasing. This data is deemed reliable but is not guaranteed accurate by the MLS.
Data provided by HAR.com © 2026. All information provided should be independently verified.
Did you know? You can invite friends and family to your search. They can join your search, rate and discuss listings with you.